Astorga invertirá 422.000 euros en un aparcamiento de caravanas en la explanada de Carro Verdejo
El proyecto permitirá a 40 caravanas "aparcar en un lugar digno, ya que al lado de la plaza de toros no se reúne ninguna condición higiénico-sanitaria", asegura José Luis Nieto
![[Img #68939]](https://astorgaredaccion.com/upload/images/06_2024/2168_captura-de-pantalla-2024-06-12-163427.png)
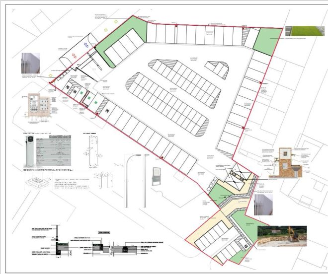
El equipo de Gobierno del PP de Astorga ha enviado a la Diputación de León un proyecto de 422.000 euros para "un aparcamiento de autocaravanas y vehículos ligeros en la calle Carro Verdejo", dentro del Plan de Cooperación Municipal de la institución provincial. Según el alcalde, José Luis Nieto, "esto es una promesa electoral que teníamos en la última campaña y que queremos hacerla realidad en el menor tiempo posible".
El proyecto permitirá a 40 caravanas "aparcar en un lugar digno, ya que al lado de la plaza de toros no se reúne ninguna condición higiénico-sanitaria", así como a medio centenar de vehículos ligeros.
Además, Nieto ha explicado que se arreglará una zona del solar "que pega" con la calle Plinio el Joven para que otras 10 plazas de aparcamiento queden disponibles "para los vecinos". El nuevo aparcamiento contará con zona de desagüe para autocaravanas, zona de carga de agua, de basura, de limpieza y cargadores eléctricos.
El regidor concluyó la presentación del proyecto sosteniendo que "se pretende que este parking sirva para larga distancia. Gente que viene a hacer el Camino de Santiago y necesitan dejar el vehículo en un lugar seguro; creemos que este parking puede reunir esas condiciones para que estos turistas, cada día más, pernocten y arranquen dentro del Camino de Santiago en nuestra ciudad (sic)".
![[Img #68940]](https://astorgaredaccion.com/upload/images/06_2024/7239_photo-2024-06-12-13-36-39-660x552.jpg)
![[Img #68939]](https://astorgaredaccion.com/upload/images/06_2024/2168_captura-de-pantalla-2024-06-12-163427.png)
El equipo de Gobierno del PP de Astorga ha enviado a la Diputación de León un proyecto de 422.000 euros para "un aparcamiento de autocaravanas y vehículos ligeros en la calle Carro Verdejo", dentro del Plan de Cooperación Municipal de la institución provincial. Según el alcalde, José Luis Nieto, "esto es una promesa electoral que teníamos en la última campaña y que queremos hacerla realidad en el menor tiempo posible".
El proyecto permitirá a 40 caravanas "aparcar en un lugar digno, ya que al lado de la plaza de toros no se reúne ninguna condición higiénico-sanitaria", así como a medio centenar de vehículos ligeros.
Además, Nieto ha explicado que se arreglará una zona del solar "que pega" con la calle Plinio el Joven para que otras 10 plazas de aparcamiento queden disponibles "para los vecinos". El nuevo aparcamiento contará con zona de desagüe para autocaravanas, zona de carga de agua, de basura, de limpieza y cargadores eléctricos.
El regidor concluyó la presentación del proyecto sosteniendo que "se pretende que este parking sirva para larga distancia. Gente que viene a hacer el Camino de Santiago y necesitan dejar el vehículo en un lugar seguro; creemos que este parking puede reunir esas condiciones para que estos turistas, cada día más, pernocten y arranquen dentro del Camino de Santiago en nuestra ciudad (sic)".
![[Img #68940]](https://astorgaredaccion.com/upload/images/06_2024/7239_photo-2024-06-12-13-36-39-660x552.jpg)






